Den Haag, Statenlaan 36, 36A & 36B

































































- Herenhuis
- GBO 263 m² object
- 174 m² perceel
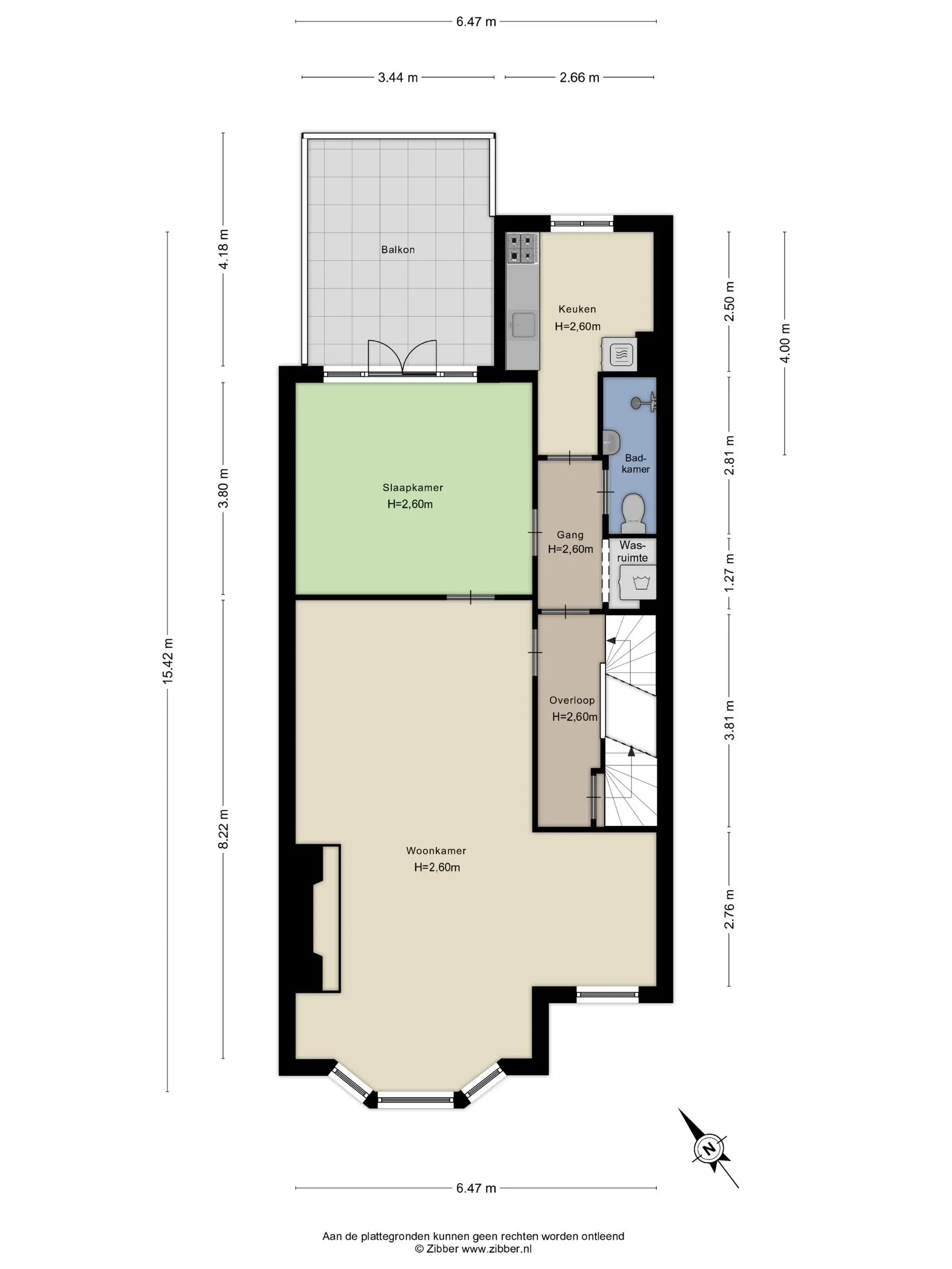
- Unieke verkoop van het herenhuis gelegen aan de Statenlaan te Den Haag. Het herenhuis bestaat uit drie kadastraal gesplitste appartementen. Statenlaan 36 Het verhuurde appartement gelegen op de begane grond. De begane grond wordt momenteel gezien als één appartement. Het appartement betreft ca. 105m² woonruimte en heeft een tuin van 59m². Statenlaan 36A Het 2/3-kamer appartement gelegen op de 1e etage van een fraai herenhuis. Het appartement heeft een royaal zonnig dakterras van ca. 14m² en hoge plafonds. De woning is gelegen op eigen grond. Indeling: - Toegang via gesloten entree met bellentableau en ruimte voor het stallen van een fiets. - Trap naar de 1e verdieping waar zich de entree van de woning bevindt. - Ruime woon/-eetkamer met bijgetrokken voorzijkamer, fraaie authentieke schouw met pilaren en erker. - Keuken met onder- en bovenkasten, 4-pits gaskookplaat en afzuigkap. - Betegelde badkamer met douche, toilet en vaste wastafel. - Grote achter slaapkamer met sfeervolle open slaande glas-in-lood deuren. - Dakterras van 14m²op het Zuidwesten, gelegen op de middag/avondzon. Statenlaan 36B Het 4-kamer appartement gelegen op de 2e etage met 3 slaapkamers. Het appartement heeft een royaal zonnig dakterras van ca. 9m². De woning is gelegen op eigen grond. Indeling: - Toegang via gesloten entree met bellentableau en ruimte voor het stallen van een fiets. - Trap naar de 1e verdieping waar zich de entree van de het nummer 36A bevindt en binnentrap naar 2e verdieping. - Ruime overloop voorzien van dakraam met glas in lood. - Ruime woon-/eetkamer met schouw. - Ruime open keuken met keukenblok in hoekopstelling, onder- en bovenkasten, 4-pits gaskookplaat, oven, en dakraam. - Badkamer met douche, toilet en fonteintje. - Voorslaapkamer met openslaande deuren naar het voorbalkon. - Achter slaapkamer met openslaande deuren naar het terras. - 3e slaapkamer aan de voorzijde met wastafel. - Fraai terras op het Zuidwesten gelegen op de middag/avondzon. Verhuursituatie: Statenlaan 36 is verhuurd voor onbepaalde tijd voor € 1.269,10 per maand inclusief voorschot gas, licht en water (ad € 150,-). De Statenlaan 36a en 36b worden leeg en ontruimd opgeleverd. Dit herenhuis ligt in het Statenkwartier. Direct om de hoek ligt winkelstraat 'De Fred' met een ruim aanbod aan winkels, horeca en supermarkten. Voor de deur stopt de bus naar Kijkduin en Scheveningen. In de nabije omgeving liggen meerdere O.V.-haltes en uitvalswegen. Ook het Kunstmuseum, World Forum en Madurodam liggen in de buurt. Het strand is op circa 10 minuten fietsen gelegen. Vanuit de gemeente is er een vergunning verstrekt waarmee het mogelijk is om het huidige terras uit te bouwen en te betrekken bij de woning waardoor het appartement ca. 10m2 groter kan worden. De vergunning en tekeningen kunnen op aanvraag worden verstrekt. Let op! Buren zal als notaris worden aangewezen indien tot gunning wordt overgegaan. 
- Kadastrale gegevens:- Kadastrale aanduiding: 's-Gravenhage AK 11749 A1, 's-Gravenhage AK 11749 A2, 's-Gravenhage AK 11749 A3. 
- Gebruikssituatie:- Statenlaan 36 is momenteel verhuurd voor onbepaalde tijd voor € 1.269,10 per maand inclusief voorschot gas, licht en water (ad € 150,-). De Statenlaan 36a en 36b worden momenteel in bruikleen uitgegeven maar leeg en ontruimd opgeleverd. 
Over het object
- TypeHerenhuis
- GroepWoningen
- Bouwjaar1902
- GebruikssituatieVerhuurd
- Oppervlakte objectGBO 263 m²
- Oppervlakte perceel174 m²
Bezichtigingen
Het is mogelijk dit object op afspraak te bezichtigen op woensdag 27 maart 2024 van 11:00–12:00 en op dinsdag 9 april 2024 van 13:30–14:30. Neem contact op met Vastgoed Veiling om een afspraak in te plannen.
Over de veiling
- SoortVrijwillige veiling
- BiedmethodeOpbod en afslag
- StatusNiet gegund
- Datum
- OrganisatorBOG Auctions
- InzetpremieTen laste koper
- ToewijzingRecht van gunning
- BelastingOverdrachtsbelasting
Op deze veiling zijn de AVVIVV 2013 en bijzondere veilingvoorwaarden van toepassing.
Gebruik het biedformulier om een onderhands bod uit te brengen.
Kosten
Houd, naast het veilingbedrag, rekening met de volgende kosten:
- + Inzetpremie ten laste van koper
- + Bijkomende kosten à 5.626,50 EUR
- + Overdrachtsbelasting
Dataroom
- Bijzondere veilingvoorwaarden.pdf
- AVVIVV 2013.pdf
- Kostenoverzicht.pdf
- Biedformulier.pdf
- Kadastrale kaart - _s-Gravenhage AK 9089.pdf
- Energielabel 2e verdieping.pdf
- Energielabel BG.pdf
- Huurovereenkomst Statenlaan 36 - geannonimiseerd.pdf
- Huurovereenkomst Statenlaan 36 - kennisgeving verhoging.pdf
- Meetrapport.pdf
- Tekening realiseren van een dakopbouw_Statenlaan_36_20102023.pdf
- Toewijzing splitsingsvergunning.pdf
- uittreksel kvk vereniging van eigenaars.pdf
- V.v.E.-notulen Statenlaan 36 36a en 36 b te Den Haag activering kopie.pdf
- Energielabel 1ste verdieping.pdf
- verlening omgevingsvergunning Statenlaan 36A en 36B.pdf
Notaris
Quadrant Notarissen Mevr. Kirsten Prick Zeestraat 62 2518 AC Den Haag
Tel. +31 (0)70 280 00 60
Verkoop
Voor vragen over deze verkoop kun je terecht bij:
Vastgoed Veiling Overschiestraat 59 1062 XD Amsterdam
info@vastgoedveiling.nl
Tel. 033 - 808 02 62
