Beleggingsobject 6 (casco) appartementen in Beerwalde - Duitsland





















- Appartement
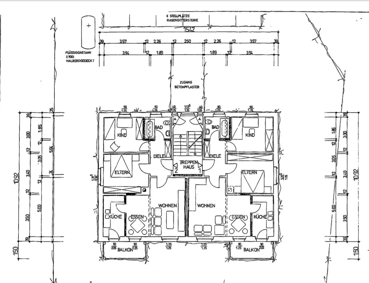
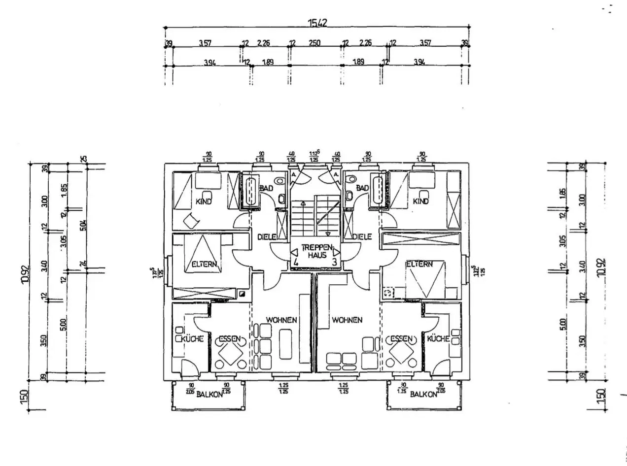
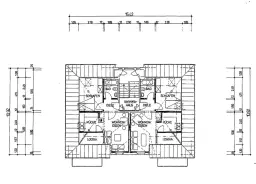
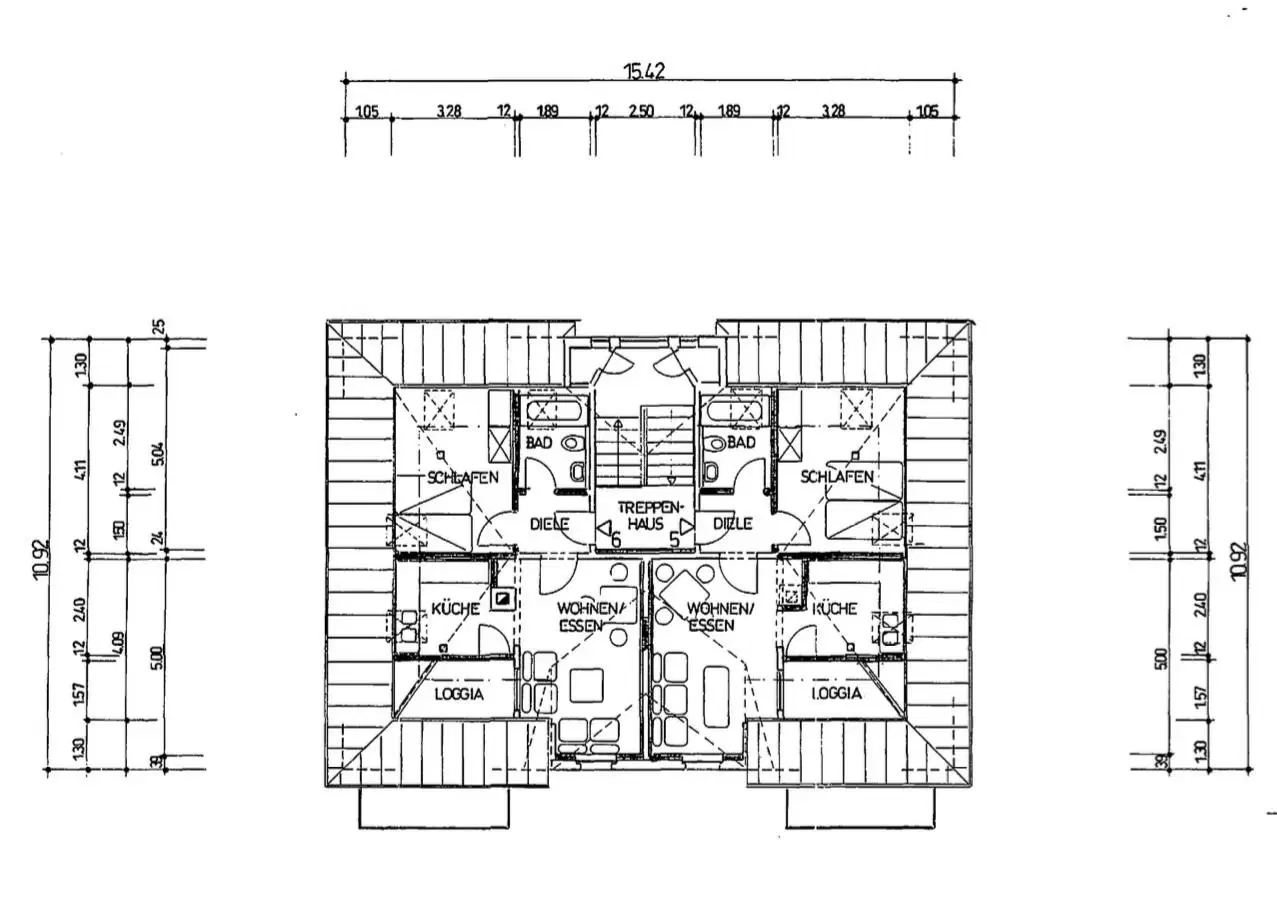
Op een royaal perceel van circa 680 m² staat dit vrijstaande appartementencomplex met eigen parkeerplaatsen. Het gebouw bestaat uit zes appartementen die grotendeels in casco-staat zijn afgewerkt, ideaal voor beleggers of ontwikkelaars. Beerwalde is een charmant dorp met karakteristieke landhuizen en villa’s, gelegen in een rustige en groene omgeving. In de nabije omgeving bevinden zich onder andere het meer en de populaire attractie Seebühne Kriebstein, een geliefde bestemming voor recreatie en toerisme. Daarnaast is de regio economisch aantrekkelijk dankzij de aanwezigheid van diverse fabrieken in de automotive-industrie, wat zorgt voor stabiele werkgelegenheid en een constante vraag naar woonruimte. Googlemaps: (51.0417778, 12.9747778)
Kadastrale gegevens:
Grundbuch: Amtsgericht Döbeln, Grundbuch von Beerwalde Blatt Nr. 133, Flurstück 70/6 und 70/7
Over het object
- TypeAppartement
- GroepWoningen
- GebruikssituatieOnbekend
Over de veiling
- SoortPartnerveiling
- StatusGegund
- Datum
- OrganisatorTroostwijk Auctions
- ToewijzingRecht van gunning
Kosten
Houd, naast het veilingbedrag, rekening met de volgende kosten:
Contact
Vastgoed Veiling Overschiestraat 59 1062 XD Amsterdam
Makelaar
Voor vragen over deze verkoop kun je terecht bij:
Troostwijk Auctions Overschiestraat 59 1062 XD Amsterdam
realestate@troostwijkauctions.com
Tel. +31 (0)85 107 43 03