Ruim woon- en werkhuis op perceel van 690 m² in Ritteburg, Halle, Leipzig - Duitsland


































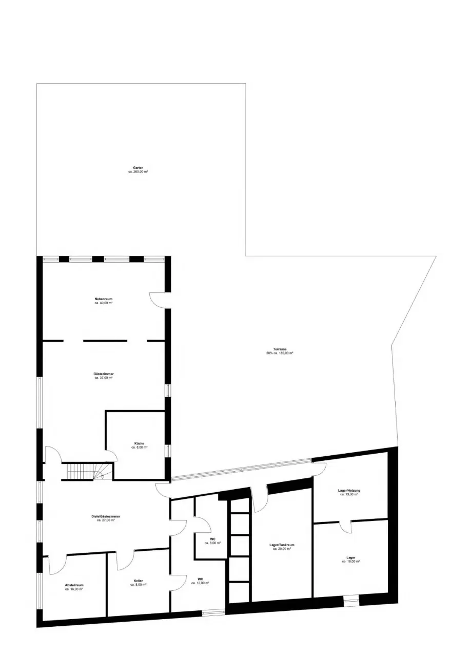
Traditioneel gebouwde woning met ca. 433 m2 gebruiksoppervlakte op een perceel van 690m2. De woning heeft een woonruimte, wat bestaat uit verschillende slaap-, woon- en vrijetijdskamers. Ook zit er een winkel/ werkplaats bij, hier zijn mogelijkheden om bijv. gasten te ontvangen, een kunstgalerie of muziekruimte. Er zit een ruime tuin bij die momenteel verwilderd is. Ritteburg is gelegen in Thüringen, aan de rand van het Kyffhäusergebergte. Er zijn veel historische kastelen en stadjes te vinden, ook liggen er wijngaarden op korte afstand. Het gebied is een bekend vakantieverblijf als tweede thuis. Disclaimer: Het object dient gerenoveerd en gemoderniseerd te worden. Google Maps Coördinaten: 51°20'42.9"N 11°19'36.6"E Kadastrale gegevens: AG Sondershausen Grundbuch von Ritteburg Blatt 5043 Gemarkung Ritteburg Flur 5, Flst. 200/56
Kadastrale gegevens:
AG Sondershausen Grundbuch von Ritteburg Blatt 5043 Gemarkung Ritteburg Flur 5, Flst. 200/56
Over het object
- GebruikssituatieOnbekend
Bezichtigingen
Bezichtigingen buitenzijde kan op eigen gelegenheid, alleen vóór het bieden, gedurende de duur van de veiling. Bezichtiging binnenzijde is niet mogelijk.
Over de veiling
- SoortPartnerveiling
- StatusGegund
- Datum
- OrganisatorTroostwijk Auctions
- ToewijzingRecht van gunning
Kosten
Houd, naast het veilingbedrag, rekening met de volgende kosten:
Notaris
-
Makelaar
Voor vragen over deze verkoop kun je terecht bij:
Troostwijk Auctions Overschiestraat 59 1062 XD Amsterdam
realestate@troostwijkauctions.com
Tel. +31 (0)85 107 43 03