27 appartementen, bouwjaar 1988, 11 verhuurd (€ 58.500,= huur) - Markneukirchen - Duitsland
















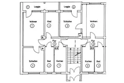
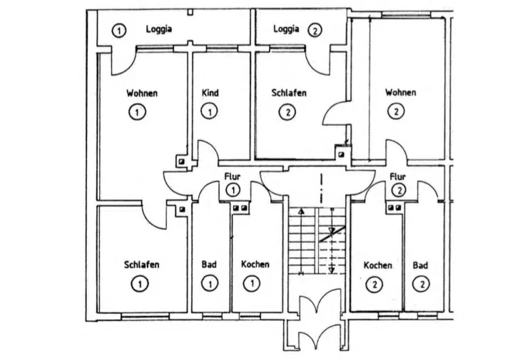
Beleggers en investeerders opgelet. Verhuur of uitponding mogelijk! In het zuidelijke deel van de groene deelstaat Saksen , op de grens met het rijke Bayern en het historische Thüringen gelegen bieden wij u 27 appartementen aan voor verkoop. De appartementen complexen zijn gebouwd in 1988 en doorlopend goed onderhouden en gemoderniseerd. Thans zijn 11 appartementen verhuurd, de overige 16 worden vrij van huur geleverd. De huidige huurstroom bedraagt €58.500,- per jaar. De huur exclusief stroom. Water en rioolwater afvoer en verwarming is inclusief en word naar verbruik afgerekend. De overige woningen worden vrij van huur en gebruik overgedragen. Het betreft hier 2- en 3 kamer appartementen met een grootte variërend tussen ca. 51 m2 en 63 m2. De gebouwen zijn opgetrokken uit steen/beton met een beschoten kap en volledig onderkelderd. In het souterrain bevinden zich de bergingen. De gebouwen zijn gesplitst in appartementsrechten. Ligging: Saksen. De “muziekstad” Markneukirchen, met ca. 7.700 inwoners, ligt ongeveer 33 km ten zuiden van Plauen en is wereldwijd bekend vanwege de traditionele vervaardiging van kwalitatief hoogwaardige muziekinstrumenten. Markneukirchen ligt aan de B 283, op ca. 6 km van de B 92 en ca. 25 km van de A 72. Het object bevindt zich op ca. 1,1 km van het stadscentrum, in een gerenoveerde en goed verhuurde nieuwbouwwijk. Winkels voor de dagelijkse behoeften, evenals scholen, een kleuterschool, artsen en haltes van het openbaar vervoer, zijn te voet bereikbaar. Miteigentumsanteile an dem Grundstück Flurstücke 1257/6, 1257/8, 1257/9 und einer Größe von 3.673 m2 verbunden mit dem Sondereigentum an den Wohnungen nebst Keller im Aufteilungsplan bezeich- net mit Nr. 2, 3, 5 bis 20, 22 bis 24, 26 bis 31 Disclaimer: informatie kan afwijken, evenals de huursituatie bij oplevering. De informatie welke wordt verstrekt dient gezien te worden als puur informatief, koper dient zelf gedegen onderzoek uit te voeren. Locatie Google maps: (50.3112900, 12.3110600)
Kadastrale gegevens:
Grundbuch -Amt Plauen, Wohnungs-GB von Markneukirchen, Blätter Nr. 2638, 2639, 2641 bis 2656, 2658 bis 2660, 2662 bis 2667 insgesamt 830,06/1.000tel
Over het object
- GebruikssituatieOnbekend
Over de veiling
- SoortPartnerveiling
- StatusGegund
- Datum
- OrganisatorTroostwijk Auctions
- ToewijzingRecht van gunning
Kosten
Houd, naast het veilingbedrag, rekening met de volgende kosten:
Dataroom
Notaris
-
Makelaar
Voor vragen over deze verkoop kun je terecht bij:
Troostwijk Auctions Overschiestraat 59 1062 XD Amsterdam
realestate@troostwijkauctions.com
Tel. +31 (0)85 107 43 03