Amsterdam, Apollolaan 91




















































































































- Herenhuis
- : 459 m² object
- 162 m² perceel
Het voortdurende recht van erfpacht van een perceel grond, eigendom van de gemeente Amsterdam, met de rechten van de erfpachter op de zich op die grond bevindende opstallen, bestaande uit een herenhuis met erf en verder aan- en toebehoren, plaatselijk bekend te 1077 AM Amsterdam, Apollolaan 91, kadastraal bekend gemeente Amsterdam, sectie Z, nummer 972, groot een are en tweeënzestig centiare (1a 62ca). Het recht van erfpacht is een voortdurend recht van erfpacht. Het huidige tijdvak waarvoor de canon en de voorwaarden zijn vastgesteld loopt van 16 mei 2001 tot en met 16 mei 2051. De canon bedraagt EUR 4.567,49 per jaar, te betalen in 2 halfjaarlijkse termijnen. De canon wordt om de 5 jaar geïndexeerd. Het volgende indexatie moment is 16 mei 2026. Op grond van het bepaalde in artikel 5:92 lid a2 Burgerlijk Wetboek is de Koper naast de hudige eigenaar hoofdelijk aansprakelijk jegens de erfverpachter voor de betaling van de achterstallige canon die in de voorafgaande vijf (5) jaren opeisbaar is geworden. Op heden bedraagt de achterstand in de betaling van de canon EUR 6.851,25, welk bedrag nog kan oplopen (nieuwe betalingstermijn, rente, invorderingskosten). De achterstand wordt in het kader van deze veiling bij de koper in rekening gebracht. Voor zover verkoper bekend, is over de verkrijging van voormeld registergoed geen omzetbelasting, maar wel overdrachtsbelasting verschuldigd. De overdrachtsbelasting wordt nimmer geacht in het bod te zijn begrepen. Voor rekening van de koper komen: - de overdrachtsbelasting en de verschuldigde omzetbelasting; - het honorarium van de Notaris; - de kosten voor een eventuele Akte de Command; - het kadastrale recht en de kosten van kadastrale recherches; - de kosten van ontruiming; en - de achterstallige canon, een en ander te vermeerderen met de eventueel verschuldigde omzetbelasting over deze kosten. De Koper dient de verschuldigde overdrachtsbelasting en de waarborgsom (10% van de koopsom) uiterlijk binnen 2 werkdagen na de Veiling te voldoen, waarbij geldt dat de waarborgsom minimaal EUR 15.000,- bedraagt. De betaling van de koopprijs dient uiterlijk plaats te vinden op 2 december 2025 (4 weken na de Veiling).
Kadastrale gegevens:
Amsterdam Z 972
Gebruikssituatie:
Let op, op grond van het omgevingsplan is aan de gronden van het gehele perceel de bestemming ‘Gemengd - 5’ toegekend. De begane grond en het souterrain zijn daardoor niet bestemd voor wonen. Zie voor de regels het document 'omgevingsplan Apollolaan 91'. De gebruikssituatie van het registergoed is - voor zover Verkoper bekend (mede op basis van de Basisregistratie Personen en een bezichtiging) - als volgt: leegstaand. Desondanks zal de verkoper aan de daartoe bevoegde voorzieningenrechter het verlof vragen tot het inroepen van het huurbeding tegen onbekende huurders en gebruikers. Het verlof is verleend. Gedurende een termijn van één maand na de betekening van de beschikking aan de onbekende (zakelijke) huurders/gebruikers mag niet worden ontruimd. Eventuele ontruiming is voor rekening en risico van de koper. De verkoper staat niet in voor kopers bevoegdheid tot ontruiming. Er vindt geen verrekening plaats van huren, servicekosten en/of waarborgsommen.
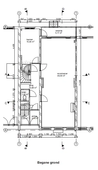
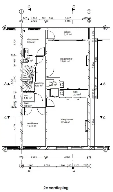
Over het object
- TypeHerenhuis
- GroepWoningen
- BouwjaarBAG 1927
- GebruikssituatieLeegstaand
- Oppervlakte object: 459 m²
- Oppervlakte perceel162 m²
Bezichtigingen
Het is mogelijk om dit object te bezichtigen op vrijdag 10 oktober 2025 om 10:30 uur. Vooraf aanmelden bij Vastgoed Veiling (via info@vastgoedveiling.nl) is verplicht. Daarnaast is legitimeren op locatie voorafgaand aan de bezichtiging verplicht.
Over de veiling
- SoortExecutieveiling
- BiedmethodeOpbod en afslag
- StatusOnderhands verkocht
- Datum
- OrganisatorVastgoed Veiling
- InzetpremieTen laste verkoper
- ToewijzingRecht van gunning
- BelastingOverdrachtsbelasting
Openbare verkoop ex. art. 3:268 BW juncto 3:254 BW.
Op deze veiling zijn de AVVI 2015 en bijzondere veilingvoorwaarden van toepassing.
Gebruik het biedformulier om een onderhands bod uit te brengen.
Kosten
Houd, naast het veilingbedrag, rekening met de volgende kosten:
- + Bijkomende kosten à 29.364,03 EUR
- + Overdrachtsbelasting
Dataroom
- Bijzondere veilingvoorwaarden.pdf
- AVVI 2015.pdf
- Kostenoverzicht.pdf
- Biedformulier.pdf
- AVVI 2015.pdf
- Publicatie bijzondere veilingvoorwaarden Apollolaan 91 te Amsterdam.pdf
- Brondocument_HYP4_88050_143 - akte publiekrechtelijk beperking.pdf
- Brondocument_HYP4_18522_44 erfpacht akte.pdf
- Algemene erfpachtvoorwaarden 1994.pdf
- uittreksel_kadastrale_kaart_1077AM91_26-09-2025_13-26-40.pdf
- EP online.png
- Bodemloket.pdf
- BAG Viewer Apollolaan 91, Amsterdam.pdf
- Biedproces - Vastgoed Veiling.pdf
- Omgevingsplan Apollostraat 91.pdf
Notaris
AKD N.V. Dhr. Sven Billet Flight Forum 1 5657 DA Eindhoven
djoosten@akd.eu
Tel. +31 (0)88 253 58 04
Verkoop
Voor vragen over deze verkoop kun je terecht bij:
Vastgoed Veiling Overschiestraat 59 1062 XD Amsterdam
info@vastgoedveiling.nl
Tel. +31 (0)33 808 02 62